| Productoverzicht - L502 / G502 Raamrooster |




Download een CAD bestand van de L502 / G502 in een van de volgende formaten:
L502:
DRW formaat
DWG formaat
DXF formaat
G502:
DRW formaat
DWG formaat
DXF formaat
Klik hier om de brochure van dit raamrooster te downloaden.
|
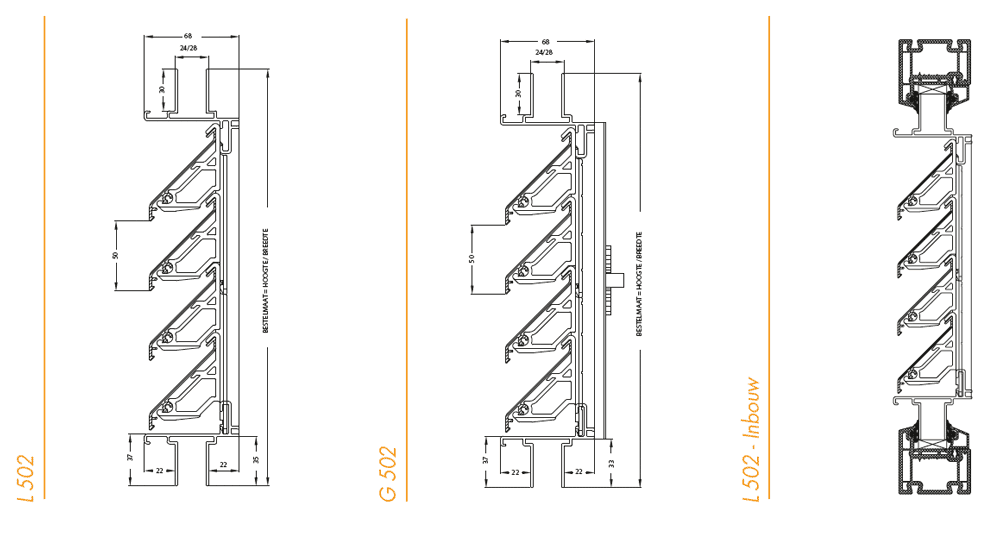
Technische gegevens:
- Gemaakt uit geëxtrudeerde aluminium-profielen AlMgSi 0,5
- Lamelhoogte: 50 mm
-
Standaard uitvoering:
- Natuurkleur geanodiseerd (15 - 20 micron)
- Gemoffeld in Ral 9010 (60 – 80 micron)
- Alle Ral-kleuren op aanvraag
- Geschikt voor rechtstreekse plaatsing in het raam.
- Standaard inox muggengaas 18/8: 2 x 2 mm
Optie: inox muggengaas: 6 x 6 mm
- Geometrische doorlaat 50%
- Vrije luchtdoorlaat (opp): 75%
- Optie: Afsluitbaar raamrooster G 502
Bediening dmv een kunststof draaiknop (Optioneel: koordbediening)
Afmetingen L 502 & G 502
- Flensbreedte: 24 mm
- Sponning: 30 mm
- Alle afmetingen zijn mogelijk vanaf 200mm tot 1700mm (min. Hoogte 200mm)
- Maatvoering bij bestelling Inbouwmaat: breedte x hoogte
Bevestiging
- Met glaslatten in het raam
- Gebruik van kaleerblokjes is aanbevolen
|